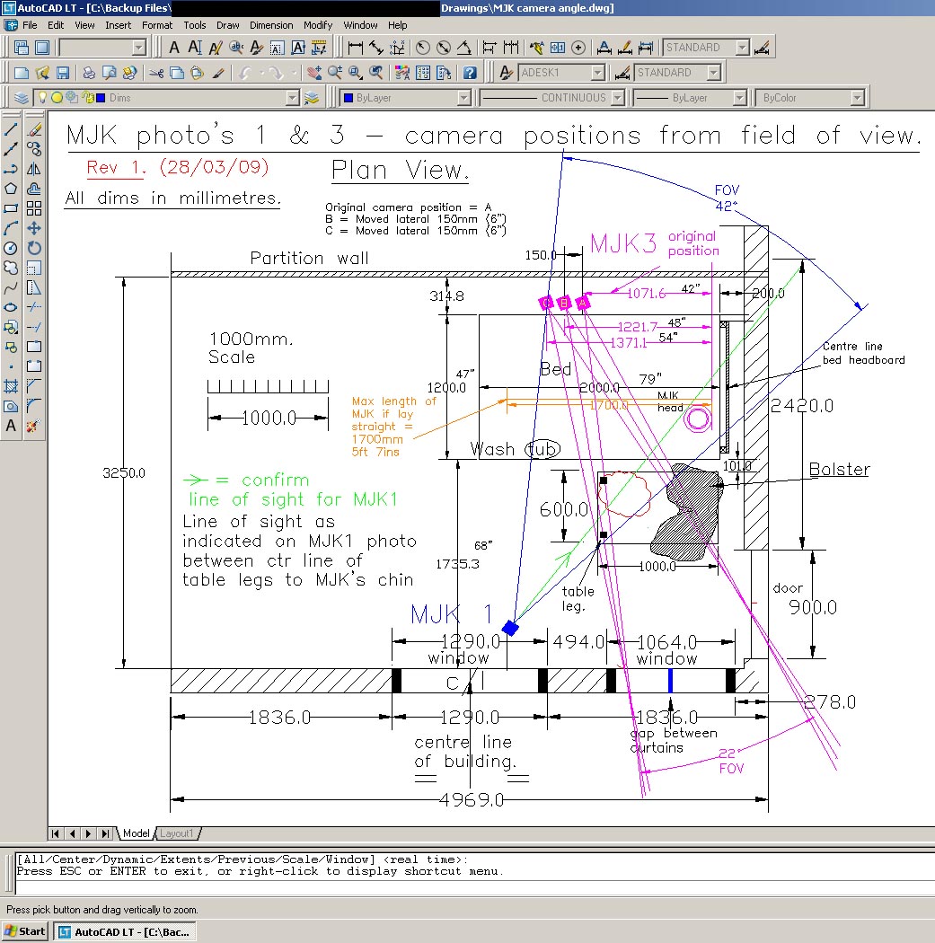
Using photos, sketches and text descriptions of 13 Miller's Court to obtain physical dimensions of the building, it's possible to produce a fairly accurate scaled plan view reproduction of the crime scene of Mary Jane Kelly as seen within the two well known and published photographs known as
MJK1 and MJK3.
The field of view (FOV) of those two photos, MJK1 and MJK3, are used to place the positions of where the camera was likely to be to capture each photograph.
This is achieved by using landmarks in each photograph then locating those marks on the scaled drawing and developing the FOV parameters as lines back to a point.
After a fairly exhaustive set of trial and error layouts of object dimension and positioning within the confines of each of the FOV's, this layout appears to be about as near as possible to how the scene may have looked.
I've used Autocad to draw this plan so that accuracy is ensured and also added a scale so that readers can make a printout and confirm dimensional configurations themselves.
I decided to use this 'screengrab' in the actual CAD window because it reproduces with clarity, whereas a print and scan would loose the finer details and dimensions become confusing to read.
I apologise for the dimensioning in millimetres. I still use feet and inches but prefer to draw in mm's, so I'm sure some of you will be doing the conversions.
I hope this drawing helps to resolve some of the misunderstandings that have arisen between the interpretation of the two photographs in the past, eg, moving the table or bed or both to suit the photographer.
I think that careful study of the drawing in conjunction with the two photos should quickly dissolve those conclusions as false !
If the layout is agreed to be fairly accurate then let it follow that more information can be extracted for the enquiring mind to explore further in the case of Mary Jane Kelly.
Knowing the exact camera, lens and format would give greater accuracy,
but that is something I have not been able to locate.
I didn't include the full figure of MJK on the bed as hand drawing is not my thing, perhaps artist Jane Coram could intervene and draw MJK to scale.
Best, Steve
MJK1 and MJK3.
The field of view (FOV) of those two photos, MJK1 and MJK3, are used to place the positions of where the camera was likely to be to capture each photograph.
This is achieved by using landmarks in each photograph then locating those marks on the scaled drawing and developing the FOV parameters as lines back to a point.
After a fairly exhaustive set of trial and error layouts of object dimension and positioning within the confines of each of the FOV's, this layout appears to be about as near as possible to how the scene may have looked.
I've used Autocad to draw this plan so that accuracy is ensured and also added a scale so that readers can make a printout and confirm dimensional configurations themselves.
I decided to use this 'screengrab' in the actual CAD window because it reproduces with clarity, whereas a print and scan would loose the finer details and dimensions become confusing to read.
I apologise for the dimensioning in millimetres. I still use feet and inches but prefer to draw in mm's, so I'm sure some of you will be doing the conversions.
I hope this drawing helps to resolve some of the misunderstandings that have arisen between the interpretation of the two photographs in the past, eg, moving the table or bed or both to suit the photographer.
I think that careful study of the drawing in conjunction with the two photos should quickly dissolve those conclusions as false !
If the layout is agreed to be fairly accurate then let it follow that more information can be extracted for the enquiring mind to explore further in the case of Mary Jane Kelly.
Knowing the exact camera, lens and format would give greater accuracy,
but that is something I have not been able to locate.
I didn't include the full figure of MJK on the bed as hand drawing is not my thing, perhaps artist Jane Coram could intervene and draw MJK to scale.
Best, Steve

xxxxxxxx
(Although "Autocad" sounds rather amusing!- wonder if I could get one!! (LOL)
Comment